北赤羽駅前
物件番号:240816DCP
| 物件名 | 北赤羽駅前 | 物件種別 | 医療モール |
|---|---|---|---|
| 募集科目 | 内科系 | ||
| 住所 | 〒115-0051 東京都北区浮間3-1-52 | ||
| アクセス | 京浜東北線「北赤羽」駅より徒歩2分 | ||
| 構造 | 鉄筋コンクリート造 | 築年数 | 1987年2月 |
| 募集区画 | 1区画 | ||||
|---|---|---|---|---|---|
| 賃貸情報 | 区画名 | 面積 | 賃料 | 管理・共益費 | 月額賃料合計 |
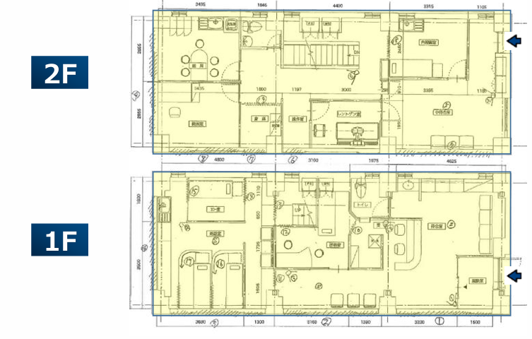
| 1階及び2階 | 50.31坪 | 10,000円/坪(消費税別) | 賃料に含む | 503,000円(消費税別) | |
| 敷金 | 4か月 | 礼金 | お問い合わせください |
|---|---|---|---|
| 共益費内訳 | 契約期間 | お問い合わせください | |
| 保証金 | 無 | 明け渡し | 内装付き |
| 設備 | お問い合わせください | 引き渡し時期 | お問い合わせください |
| 既テナント | 3階:耳鼻咽喉科 4階:歯科 地下:整骨院 隣に調剤薬局あり |
||
| 備考 | |||
| コメント | 京浜東北線「北赤羽」駅より徒歩2分 消化器内科の居ぬき物件 メディカルビルとして長年ある場所 認知度も高いので早期立ち上がりが見込まれます。 |
||
| 物件名 | 北赤羽駅前 |
|---|---|
|
物件画像
|
|
|
物件画像
|
|
|
周辺地図
|
|