二子玉川メディカルセンター
物件番号:251126NC
| 物件名 | 二子玉川メディカルセンター | 物件種別 | 医療モール |
|---|---|---|---|
| 募集科目 | 内科系 外科系 整形外科 小児科 皮膚科 眼科 耳鼻咽喉科 産科・婦人科 心療内科 泌尿器科 | ||
| 住所 | 〒158-0094 東京都世田谷区玉川2-11-14 | ||
| アクセス | 東急田園都市線「二子玉川」駅より徒歩5分 | ||
| 構造 | お問い合わせください | 築年数 | 2026年3月下旬竣工予定 |
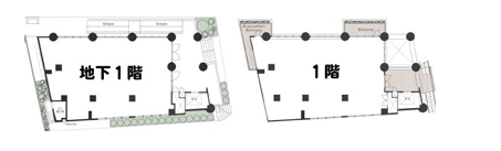
| 募集区画 | 5区画 | ||||
|---|---|---|---|---|---|
| 賃貸情報 | 区画名 | 面積 | 賃料 | 管理・共益費 | 月額賃料合計 |
| 1階 | 50.46坪 | お問い合わせください | お問い合わせください | お問い合わせください | |
| 2階 | 58.82坪 | お問い合わせください | お問い合わせください | お問い合わせください | |
| 3階 | 58.82坪 | お問い合わせください | お問い合わせください | お問い合わせください | |
| 4階 | 45.14坪 | お問い合わせください | お問い合わせください | お問い合わせください | |
| B1階 | 約20坪(調剤薬局と分割) | お問い合わせください | お問い合わせください | お問い合わせください | |
| 敷金 | お問い合わせください | 礼金 | お問い合わせください |
|---|---|---|---|
| 共益費内訳 | お問い合わせください | 契約期間 | 普通借家契約 |
| 保証金 | お問い合わせください | 明け渡し | お問い合わせください |
| 設備 | お問い合わせください | 引き渡し時期 | お問い合わせください |
| 既テナント | B1階:調剤薬局予定 | ||
| 備考 | |||
| コメント | 東急田園都市線「二子玉川」駅より徒歩5分 人気の沿線であり、人気のエリアの医療モール新企画です |
||
| 物件名 | 二子玉川メディカルセンター |
|---|---|
|
物件画像
|
|
|
物件画像
|
|
|
周辺地図
|
|